обо мне и моей бригаде

Строганов Кирилл
Я занимаюсь ремонтом более 15 лет. Самое приятное для меня - солидный список довольных клиентов.
Моя главная задача - организовать процесс ремонта таким образом, что бы проходил легко и приятно при взаимодействии со мной и моей командой. Я максимально открыт для вас.
Помогу подобрать современный материал, как дорогой так и не дорогой.
Оптимизирую смету. Многолетний опыт позволяет мне предложить Вам оптимально снизить стоимость ремонта без потери качества даже в классе премиум.
Мне удалось собрать отличную команду, которая работает слаженно. Это позволяет четко выдерживать сроки работ, не выходить за рамки согласованной сметы и экономить ваше время и силы.
К своей работе мы подходим с удовольствием начиная от создания дизайн проекта и заканчивая советами по расстановке мебели и декору помещения.
Дизайн проекты 2 квартир фото - мои советы и примеры работ
Из чего состоит хороший проект-дизайн двухкомнатной квартиры
Двушки на 45 – 70 квадратов – эти квартиры в нашей стране очень распространены, их чаще всего покупают и перепланировывают. Если делать с умом, то создать красивое практичное жилье с такой жилплощадью – не проблема.
Ниже я расскажу , как превратить самую скромную квартиру в конфетку.
Все начинается с создания проекта и схемы интерьера.
Именно этот процесс гарантирует удачный дизайн двух комнатной квартиры.
Нужно:
- выяснять сколько человек в квартире проживает или будет проживать, какую «личную» жилплощадь каждому из них нужно выделить;
- определиться со стилем внутреннего квартирного убранства. Главный сегодняшний тренд – это союз красоты и функциональности;
- расширить квартиру легче всего, если превратить все основные комнаты в одну большую студию, а спальню отделить легкой перегородкой. При этом балкон реально превратить в часть гостиной;
- если в двушке проживает семья с детьми, подойдет вариант, когда кухня будет соединена с гостиной, а вторая комната отдана детям. Из кладовки можно сделать небольшую игровую зону, а также хранить там детские игрушки.
Также нужно будет подумать, как убрать главные типичные недостатки двушек:
- сделать так, чтобы низкие потолки казались выше. С этой целью чуть уменьшить шкафчики, чтобы они не доставали до потолка, а над головой разместить точечные светильники;
- убрать длинные узкие комнаты-пеналы и обязательно провести визуальные границы между различными жилищными зонами. Для этого использовать обои разных цветов, перегородки из стекла, а также барную стойку;
- вместо стен делать упор на колонны и арки – это визуально увеличивает жилье, оно начинает казаться просторнее;
- расширить пространство маленького санузла. Для этого можно убрать ванную, поставить вместо нее душевую. Тумбы встроить в стену или разместить под умывальником, а туалет разместить рядом. В освободившемся месте поставить стиралку.
Удачный дизайн 2 комнатной квартиры – гарантия того, что жильцы будут довольны.
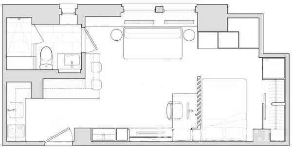
6 удачных дизайн проектов однокомнатных квартир
Однушка – это 40 квадратов в панельном доме. Слишком мало? Нет! На 40 метрах реально создать сразу несколько комнат – гостиную в комбинации со спальней или общим залом.
Вот первый пример сделанной нами неплохой переоборудованной «брежневской» однушки – маленькой, но вместительной, максимально функциональной, но эстетичной на вид.


Видите, как просторно. Как этого добились? Легко. Просто объединили все квартирные зоны в единое целое:
1. Гостиную-кухню от спальни здесь отделили небольшие жалюзи.
2. Рабочий стол поставили рядом с плазмой, все полки и ниши как бы встроены в стену.
3. Светло-коричневая расцветка, а также большие окна вместе с точечным светом сделали общую комнату очень просторной.
Больше простора
Другой вариант – это:
- · более просторная кухня, несмотря на скромные 40 квадратов;
- · диван с кроватью мы здесь «поженили» – поставили почти бок о бок, разделив лишь небольшой перегородкой. К кровати проложили лесенку. Получился просторный «воздушный» вариант;
- · и да, еще замостили пол красивой разноцветной плиткой, а холодильник вмуровали на одном уровне с плиткой и кухонными полками.


Дизайн проекты 2 квартир, фото которых представлено выше – далеко не единственные. Вот еще варианты.
Экономия пространства
Также неплохой вариант с кроватью-чердаком. Он мгновенно расширил маленькое жилище. А сдержанный североевропейский стиль с окном между кухонным и гостинным пространством добавил еще больше простора.
Расслабление
Далее интересное решение в черноморском стиле. Идея очень оригинальна – «дырочки» в интерьере напоминают конструктор лего. Соседство ярких и приглушенных цветов наполнили жилище расслабляюще-праздничной атмосферой.
Интересная темно-желтая цветовая гамма и низкие шнуровые светильники сделали спальню завораживающей.
Минимализм
Еще один интересный вариант – «союз» японского и североевропейского минималистического стиля:
- · в столовой-гостиной светловатая древесина и фоновый приглушенный цвет оттенили желто-синими элементами сидений и обшивки;
- · раздвижной шкаф с зеркалом создал иллюзию большего пространства. Важно! Чтобы зеркало себя оправдывало, его целесообразно размещать напротив окна;
· нишевую мини-спальню от остальной территории отделили лишь небольшой занавесочкой и перегородкой. Сверху разместили полки со встроенными светильниками. Кровать поставили на небольшой тумбочке.
Счастливое детство
Ну и наконец, семейная однушка. Дизайн сделали супер минималистичным, но учли потребности ребенка. Поэтому отвели много места для игры и учебы. Обилие шкафчиков подстегивает к учебе. Длинная очень практичная темно-коричневая тумба-подставка вдоль стены смотрится очень эффектно на фоне общей квартирной белизны.
Дизайн 2 комнатной квартиры 45 кв. м
Двушку на 45 квадратов легко расширить. Вот пример дизайна 2 комн кв 45 кв м. Здесь мы:
1. Сделали белый «парящий» цвет доминирующим.
2. Встроили в стены стеллажи. Этим сразу освободили уйму пространства. Еще и потолок начал казаться чуть выше.
3. Зону для приема пищи соединили с гостиной, диван отделили узким столом-барной стойкой.
4. Столовую-гостиную хорошо осветили. Над столом поместили подвесной светильник с полупрозрачным цилиндрическим плафоном, еще один поставили сбоку от дивана. В потолок встроили точечные источники света.
Совет
Комбинация света и белого фона отлично раздвигает пространство.
5. Кухню отделили небольшими пропускающими свет отодвигающимися дверьми-перегородкой.
6. Для экономии пространства микроволновку и вытяжку разместили на одном уровне с полками и плитой.
7. Спальню расширили, поставив кровать напротив входа. Хорошо осветили «точками» и плафонными лампами.
8. Разместили «пуф» - мягкое сиденье. Отсутствие спинки также расширило пространство.
9. Тумбочки «зажали» у кроватного изголовья.
10. В ванной вмуровали полку в стену – еще один прием для экономии места.
11. Унитаз поставили впритык к ванной, отгороженной прозрачной перегородкой.
С дизайном двух комнатной квартиры можно экспериментировать бесконечно.
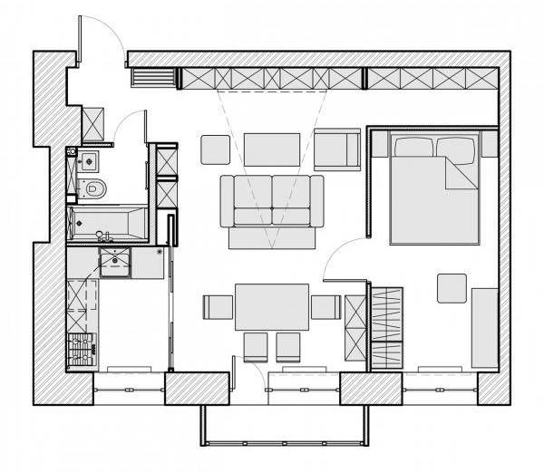
Дизайн проект 2 комнатной квартиры 60 кв м
Площади в 60 квадратов более чем достаточно для пары с ребенком. Вот пример удачной перепланировки квартиры с таким метражом:


В дизайн проекте 2 комнатной 60 кв. м за основу интерьера взяли скандинавский стиль. Сделали, правда, его чуть ярче – разбавили «эргономичность» богатыми цветами.
Кухня и гостиная:
- · кухню «обрезали», чтобы расширить супружескую спальню, а коридор и гостиную объединили;
- · матовый белый сделали оттенком фона. Чтобы он казался глубже, добавили графитовый цвет;
- · разбавили «холодную скандинавию» яркими мотивами – фотообоями, панно, принтом;
- · на пол гостиной положили ламинат а-ля белое дерево;

- · вместо обычной мебели использовали более экономный ДСП с фасадами из МДФ. Хоть мебели и много и она не маленькая, вовсе не кажется, что она «съела» много пространства;
- · использовали черно-белые светильники. Они прекрасно вписываются в общую северную стилистику жилья. Место с диваном осветили трековой системой, территорию для приема пищи – подвесами, а кухонную зону – направленными светильниками точечного типа.

Спальня
Спальня небольшая, ведь раньше она была частью чересчур объемной кухни:
- · в пространство между вентиляцией стеной вставили нишевый шкаф и комод. Получился интересный мебельный ансамбль;
- · кровать сделали с подъемной механизмом, чтобы в нее легко можно было складывать вещи;
- стену вокруг ТВ-панели оклеили лесным принтом;
- · осветили спальню небольшим боковым бра и все теми же точечными светильниками.

Детская
Сделали как можно светлее и практичнее:
- · отвели место для физкультуры и игр – оборудовали мини-площадку с лесенкой, гимнастическими кольцами, брусом и канатом;
- · в дополнение к обычной напольной кровати, поставили чердачную;
- · чтобы сделать свет более приглушенным, главный светильник покрыли холстом-абажуром.

Санузел
В ванной все разместили максимально функционально:
- · напольную псевдомраморную плитку сделали под стать настенной;
- · тумбу расположили прямо под умывальником.

Готовый дизайн проект 2 комнатной квартиры характеризуется комфортностью и красотой.
Дизайн проект 2 комнатной квартиры 75 кв м
В двухкомнатной квартире с 75 квадратами уже можно дать разгуляться фантазии. Недавно работали над перепланировкой такого жилья:

Требования были понятны – поярче, и чтобы все было максимально просторно:
· за цветовую фоновую основу взяли белый. Зеленый и лиловый сделали оттеняющими цветами. Они спокойным оттенкам добавляют драйва;
· в длинном коридоре сделали как можно ярче – над картинами разместили настенные подсвечивающие светильники, точечные потолочные лампы поместили в полупрозрачные абажуры, похожие на большие пещерные сталактиты;

· все основные комнаты объединили. Плазму разместили не «как у людей» у стены, а прямо посреди «супер-комнаты». Вставили в подставку, напоминающую спутниковую тарелку;

- · в кухне все шкафчики, умывальник и плитку для экономии места разместили на одном уроне;
- · зеленым цветом внесли в кухонный уголок вегетарианскую нотку;

- · спальню расширили с помощью зеркала в шкафу, размещенного напротив окна;
- · чтобы света не было чересчур много, светильники выбрали с темными массивными плафонами, также разбавили белизну темноватым полом и матово-белыми стенами;
- · оживили комнату желто-фиолетовой цветовой гаммой штор и подушек.

Этот дизайн проект 2 комнатной 75 кв м – один из самых удачных.
Готовый дизайн проект 2 комнатной квартиры
А представьте, что нужно вместить детскую не на 70, а на 40 квадратах. Думаете, не реально. Ошибаетесь. Детская хорошо помещается и на такой скромной площади. Причем такая, в которой могут жить сразу 2 детишек.
Чтобы этого добиться:
- кухню объединили с гостиной;
· в детской разместили двухэтажную кровать. Стилизировали ее под каюту корабля;
· придумали оригинальный способ экономии места – лесенку на верхнюю кровать сделали одновременно полками для хранения вещей.

Вот еще одно интересное решение для детской в маленькой двушке:
· опять-таки объединили спальню и кухню. Всю обстановку сделали максимально минималистичной;
· обошлись без тумб – плазму повесили на стену, стол поставили впритык к столовой зоне;

· в детской все сделали светло и скромно – обе кровати поместили на полу. Водрузили их на мини-комод.

Лучший дизайн 2 комнатной квартиры
Чтобы сделать 2-комнатную квартиру по-настоящему уютной, подойдет вот такой смешанный скандинавско-южный дизайн.
Столовая:
· напротив столов наклеили красивые «лесные» обои. Это мгновенно визуально расширило территорию;
· мебель и шторы подобрали серо-кремового цвета, чтобы они чуть «согревали» комнату с холодными лесными видами;
· прямо над столом повесили подвесной светильник – солнечный свет в северном лесу.

Гостиная:
- · цветовую гамму выбрали травянисто-белую. Такое сочетание привнесло свежесть, ощущение весны. Мелкие элементы комнаты – ковры, пледы и подушки – окрасили в зеленый;
- · рядом с диваном поставили барную стойку, а стол сместили к нему впритык. Это визуально существенно увеличило гостиную.

Спальня:
- · В спальне квартирную скандинавию разбавили африканским зноем. Цветовая гамма здесь напоминает коричневатую землю;
- · свет в комнате очень мягкий за счет свисающих ламп с сеточным абажуром;
- · черно-белое оформление кроватей и светловатые шторы чуть «остужают» жаркую атмосферу;
- · обои выполнены из натуральных волокон, а над головой свисает псевдо-полог, чтобы дополнительно подсветить кровать и окончательно убедить, что джунгли совсем рядом.


Ванна-туалет нашла место в дизайне 2 комнатной квартиры:
- · здесь все традиционно, но вместо ванны поставили душевую. Опять же, чтобы добавить простора, поднять потолок;
- · стены и тумбы встроили в стены и совместили с умывальником. Придали им матовый темновато-белый оттенок;
- · главную часть стен украсили отражающим свет орнаментом.

С чего начать планировку дизайн проекта однокомнатной квартиры?
Планировка начинается с проекта:
1. Площадь однушки разделяем на зоны – спальню, туалет-ванну и гостиную-кухню. В квартире с ребенком выделяем две спальни. По желанию клиента вместо гостиной можно сделать кабинет.
2. В цветовой гамме отдаем предпочтение светлым тонам – это всегда визуально увеличивает площадь. Обои можно выбрать яркие – хуже не будет.
3. На кухню потребуется приблизительно 10 квадратов. Важно! Мебель лучше расположить в угловом порядке – это экономит пространство.
4. Под зону для гостиной отводим территорию с окном, ведь солнечный свет (плюс хорошо подобранные светильники) – залог отличного отдыха.
5. Спальню делаем минималистичной (особенно, если еще нужно втиснуть и детскую). Кроме кровати, размещаем шкаф и комод. Последний при возможности ставим под кроватью.
6. По максимуму используем балкон – превращаем его в часть гостиной.
Даже из самой старой квартиры с маленькой площадью и ужасной планировкой можно сделать «конфетку».
Я показал это, предоставив примеры лучших дизайнов 2 комнатной квартиры и жилищ с иной площадью.



Услуги по ремонту
Заказчикам
Компания

Контакты
Ответы на вопросы