обо мне и моей бригаде

Строганов Кирилл
Я занимаюсь ремонтом более 15 лет. Самое приятное для меня - солидный список довольных клиентов.
Моя главная задача - организовать процесс ремонта таким образом, что бы проходил легко и приятно при взаимодействии со мной и моей командой. Я максимально открыт для вас.
Помогу подобрать современный материал, как дорогой так и не дорогой.
Оптимизирую смету. Многолетний опыт позволяет мне предложить Вам оптимально снизить стоимость ремонта без потери качества даже в классе премиум.
Мне удалось собрать отличную команду, которая работает слаженно. Это позволяет четко выдерживать сроки работ, не выходить за рамки согласованной сметы и экономить ваше время и силы.
К своей работе мы подходим с удовольствием начиная от создания дизайн проекта и заканчивая советами по расстановке мебели и декору помещения.
ТОП 10 интерьеров однокомнтаной квартиры
Во сколько обойдется хороший ремонт в квартире
Вы купили однокомнатную квартиру и не знаете, как её обустроить? Не представляете, как вместить сюда и гостиную, и спальню, и может даже детскую? Эта статья поможет вам разобраться, как на небольшой территории создать красивое и уютное место для отдыха.
Сегодня я расскажу о 3 дизайн-проектах, а также подскажу, как правильно выбрать дизайн для больших квартир.
Дизайн большой однокомнатной квартиры
Согласитесь, создать дизайн интерьера для большой квартиры легче, чем для маленькой, однако и здесь есть над чем потрудиться.
Первое, на что следует обратить внимание— это цвет. Сделать комнату больше помогут светлые цвета:
- Белый
- Бежевый
- Цвет вялой розы
- Охра
- Слоновая кость
- Древесный
- Кофейный

На фото кухня очень миниатюрного размера, однако благодаря пастельным тонам помещение не выглядит узким и маленьким.
А вот тёмные или яркие тона, наоборот, сделают комнату намного меньше, стены будут “давить”.

Как видно на фото, кухня не самая маленькая, однако из-за слишком ярких шкафчиков, смотрится перегруженной и разномастной.
Среди стилей, которые гармонично впишутся в небольшой интерьер, можно выделить:
Скандинавский

Скандинавский стиль очень популярен. И у него есть большие плюсы, в числе которых расширение пространства и необычный дизайн. Кстати, у этого стиля есть одна особенность: в Скандинавских странах никогда не вешают шторы, что, согласитесь, не очень удобно.
Минимализм

За счёт отсутствия большого количества мебели и мелких деталей, комната смотрится просторней.
Эклектика

Такой вариант подойдёт для тех, кто любит яркие цвета и необычные решения. Однако этот стиль следует использовать осторожно и не переборщить с яркими акцентами.
Деревенский

Деревенский тиль также очень светлый и создаёт видимость свободного пространства.
Совет
Если вы любите яркие цвета, но из-за маленькой квартиры не можете себе это позволить, не расстраивайтесь. Для того, чтобы создать яркий и необычный интерьер, достаточно повесить на светлые стены разноцветные картины, положить на диван разномастные подушки. Такой приём всегда хорошо работает.
Важно
Если вы всё-таки решили сделать светлые стены, то обращайте внимание на рисунок обоев. Очень часто люди выбирают, к примеру, белые обои с бледным рисунком в цветочки, а потом удивляются: почему комната зрительно не расширилась? Важно понимать, что лишь однотонные стены помогут сделать пространство шире, а рисунки только ещё больше украдут его.
Как обустроить большую однокомнатную квартиру
Молодое поколение всё чаще отдаёт предпочтение именно квартирам-студиям. И у таких проектов действительно много плюсов:
- Много свободного места
- Комната большая, а значит, светлая
- Есть возможность играть с детьми в подвижные игры
Однако, такую квартиру могу посоветовать лишь молодой паре или студенту, так как если в комнате живёт более 2 человек, квартира превращается неуютное, проходное помещение, что не обрадует никого. Менее всего такой вариант подойдёт семье с детьми, ведь каждый захочет иметь собственную комнату.
Лучший дизайн большой однокомнатной квартиры
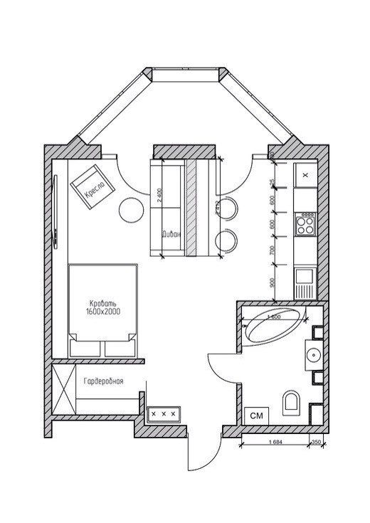
С дизайном разобрались, теперь самое время рассмотреть конкретные примеры обустройства однокомнатной квартиры. Предлагаю рассмотреть несколько фото больших квартир. Начну с комнаты размером 31 кв. м.
Проект №1

Комната сделана в Скандинавском стиле, о котором я уже писал ранее.

Как можно увидеть на фото, одна комната совмещает в себе и гостиную, и столовую, и спальню. Помещение не выглядит маленьким благодаря светлым оттенкам.

Немаловажную роль играет и отсутствие штор на окнах—комната выглядит светлее.

Очень интересно и компактно смотрится односпальная кровать. Для того, кто живёт один—то, что надо. А гости могут расположится на диване.

Что касается ванной комнаты, то она также смотрится просторней благодаря белому цвету.

Не смотря на то, что квартира спроектирована не совсем удобно, дизайнер нашёл выход из сложившейся ситуации. Входная дверь гармонично смотрится на кухне. Кажется, будто бы это выход вовсе не на улицу, а в другую комнату. Обратите внимание, что и в этой комнате белый цвет—главный.
Чтобы вы более наглядно представили эту квартиру, вот её план:

Как видите, и на небольшом пространстве можно создать уютный уголок для отдыха. Такой план квартиры стоит рассмотреть студентам и парам без детей.
Проект №2
Площадь—40 кв.м.

Квартира-студия выполнена в голубых и серых тонах. Однако такое сочетание ничуть не уменьшает пространства, хотя и не создаёт нового.

Комната сделана в молодёжном стиле, а значит, будет актуальна для студентов или пар с детьми.

Немаловажным плюсом такой является наличие сразу 4 спальных мест, а также уютных уголков, а значит, каждый член семьи останется доволен.

Барная стойка—отличное решение для однокомнатных квартир.

Ванна также сделана в серо-голубых тонах. Очень важно наличие зеркал—это поможет даже самое маленькое пространство превратить в большое.
Перед вами дизайн проект большой квартиры:

Как видно из плана, квартира имеет нестандартную конфигурацию, однако талантливый дизайнер смог превратить этот минус в плюс. Поэтому, не стоит отчаиваться, если у вас жилплощадь неправильной формы. Наоборот, это можно считать достоинством ваших квадратных метров.
Читайте также: Дизайн маленьких однокомнатных квартир
Проект №3
Предлагаю рассмотреть ещё одну квартиру-студию. Её площадь составляет 40 кв.м.

Как и в первой квартире кухня здесь находится прямо у выхода. Увы, но для такой планировки это единственный вариант.

Наверняка вы обратили внимание, что и эта квартира сделана в белом цвете. Также здесь очень грамотно расставлены акценты: яркие картины, подушки и диван песочного цвета.

Очень важно, что в этом интерьере спальное место отделяется от остального пространства.

Оконные проёмы довольно низкие, поэтому наличие по бокам штор кремового цвета очень важно—они делают и окна, и потолок выше.

Ванная комната сделана очень необычно: умывальник стоит в коридоре, а душевая кабина—внутри. Такое размещение действительно очень удобно: в ванной комнате достаточно места, а к умывальнику всегда можно подойти.
Лично я считаю этот проект наиболее удачным из всех, поэтому и прилагаю эскиз:

СОВЕТЫ: выбирая дизайн квартиры, подстраивайтесь и под свой образ жизни.
ЭТО ВАЖНО: если вы ещё не купили квартиру, а только собираетесь это сделать, сразу обдумывайте интерьер будущей комнаты. Часто люди не смотрят на планировку квартиры, что приводит к сложностям при дальнейшем строительстве.



Услуги по ремонту
Заказчикам
Компания

Контакты
Ответы на вопросы