обо мне и моей бригаде

Строганов Кирилл
Я занимаюсь ремонтом более 15 лет. Самое приятное для меня - солидный список довольных клиентов.
Моя главная задача - организовать процесс ремонта таким образом, что бы проходил легко и приятно при взаимодействии со мной и моей командой. Я максимально открыт для вас.
Помогу подобрать современный материал, как дорогой так и не дорогой.
Оптимизирую смету. Многолетний опыт позволяет мне предложить Вам оптимально снизить стоимость ремонта без потери качества даже в классе премиум.
Мне удалось собрать отличную команду, которая работает слаженно. Это позволяет четко выдерживать сроки работ, не выходить за рамки согласованной сметы и экономить ваше время и силы.
К своей работе мы подходим с удовольствием начиная от создания дизайн проекта и заканчивая советами по расстановке мебели и декору помещения.
Дизайн трехкомнатных квартир, примеры с фото
Как сделать квартиру максимально комфортной и функциональной.
Я занимаюсь ремонтов квартир более 15 лет и сейчас расскажу обо тонкостях планирования дизайна трехкомнатной квартиры.
Ниже - мой личный опыт, и если вам что то понравится, используйте это у себя или можете обратится ко мне и я помогу все воплатить в жизнь.
Выбор дизайна ванной комнаты
12 схем обмана при ремонте квартир
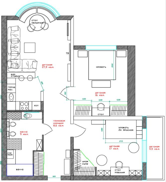
Дизайн трехкомнатной квартиры 80 м
Начнем с трехкомнатной с 80 квадратами.

Для 80 метров минимализм – лучшее решение. Клиенты попросили нас «поженить» натуральность с функциональностью. Для этого мы использовали кирпич и дерево, устранили все ненужные перегородки; окна разместили напротив одно другого – помещение буквально залило светом.
Стены из кирпича и незамысловатые светильники стали функциональным урбанистическим компонентом этого жилья. А теплые неокрашенные элементы из натуральной древесины привнесли «сельской» колорит. Результат – интересная смесь современных городских апартаментов и дачи.
Прихожая
Маленькую прихожую в форме буквы Г ограничили стеной и стояками. Разместили в ней:
· небольшие шкафы с дверями-жалюзями, выполненные в сдержанно-изысканной традиции французского Прованса;
· этно-элементы (корзинки-плетенки и коврик) для того, чтобы напоминать о дачном уюте;
· с той же целью поставили и большие старинные свечи с мягкими креслами.
Столовая территория
Наша прихожая ведет прямо в «столовую», ничем не отгороженную от гостиной и мини-кухни. Кирпично-деревянное место для «столования» сделали совсем небольшим, но получилось все очень светло и уютно.

Столовую и кухоньку разделили нишевым шкафчиком с красивыми дверцами с филенкой.
К сведению
Много окон – это не значит, что мебели места не найдется. Нашли. Просто поставили на одном уровне с окнами стеллажи. Рядом с ними разместили мягкие стильные кресла родом из американского Среднего Запада. Ну и торшер – чтобы было удобно читать приключенческий роман об индейцах.
Тон в гостиной задает оригинальная люстра с замысловатыми подвесами. Грубоватую обстановку Дикого Запада облагородили этно-узорами на мебели.

Брутальная лофтовая гостиная вообще получилась богата предметами, которые источают этно-шарм. Особо выделяются плетеные корзины и тумбы, обвитые бечевой.
Лоджия
Лоджию с гостиной соединили простым проемом с занавесками. Обошлись без дверей. Отдергиваем занавесочку, и лофт сразу оживает под лучами солнца.

Над диваном рядом с коридором, ведущим в спальню, поместили глухое окно. В него можно вставить панно или картину.
Идем в спальню. Деревянные панели по бокам кровати, абстрактный рисунок и ткани с насыщенной цветовой гаммой делают спальню стильной и одновременно уютной.

Нишевый гардероб стилизовали под клавиши пианино. Для контраста стену по бокам от «музыкального инструмента» сделали кирпичной.

Аскетичность ванной разбавили ретро-принтом с океаническими обитателями.

Дизайн трехкомнатной квартиры 75 кв
Теперь переходим к трехкомнатному жилью размером в 75 квадратов. Его дизайн создавали для семьи с маленьким ребенком. Им нужна была:
· зона отдыха (гостиная) – чем просторнее, тем лучше;
- отдельная детская для ребенка;
- отдельная же спальня.
В дизайне интерьера отдали предпочтение североамериканскому модерну. Его главные особенности – это:
· убранные перегородки – одна большая многофункциональная комната без стен и дверей;
- натуральные отделочные материалы;
- минимум декоративных элементов.

Гостиная и зона для приема/приготовления пищи
С помощью оливковых стен и дощатого светло-коричневого пола мы смогли создать довольно интересную композицию. Гипсовые плинтусы и молдинги на стыке потолка и стен несколько облагородили грубоватую североамериканскую стилистику помещения.
Да, да – над барной стойкой висят настоящие фонари. В Северной Америке такое в порядке вещей.

Диван и кресла обили натуральным белоснежным льном. Посередине гостиной поставили оригинальный ретро-чемодан родом из 50-х. В нем можно не только хранить вещи, но и использовать как столик.
В качестве люстры для гостиной подобрали цилиндрический белый абажур, хорошо рассеивающий свет. Поставили высокие яркие торшеры, чтобы сделать помещение максимально освещенным.

Детская
В детской немного отступили от грубоватых североамериканских канонов, чтобы малыш чувствовал в ней себя комфортно. Повесили разноцветные занавески. Благодаря светлым доскам детская стала выглядеть очень уютно. Стену-шкаф сделали похожей на маленький домик, покрытый черепицей. Рядом с этим «солидным» жилищем разместили «альтернативные» апартаменты – скромный индейский вигвам.

Спальня
В спальне поставили большой шкаф. На тумбочках возле кровати разместили «гибкие» лампы с регулировкой позиции. Функциональный современный дизайн разбавили старинным сундуком.

Ванна
Аскетичные лофтовые стены ванной смягчили листвой вокруг зеркала и ярким полом, выложенным плиткой.

Выбор дизайна ванной комнаты
12 схем обмана при ремонте квартир
Дизайн трехкомнатной квартиры п44т
Теперь о недавно появившемся дизайне п44т. Он лучше всего подходит для трехкомнатной квартиры в 80 квадратов.
Все комнаты п44т, как и положено, разделили. В этом есть свои плюсы – каждое помещение можно наделить собственным характером.
Кухня
Кухню освободили от вентиляции – вынесли ее в коридор. Благодаря этому место для приготовления пищи стало очень просторным.

В квартире разместили сразу несколько балконов и два туалета. Лоджия здесь просто «царских» размеров.
Правильная перепланировка
Перепланировать п44т не так сложно, как кажется. Стены – преграда вполне преодолимая. Просто объединили гостиную с кухней. Это легко – всего-то и нужно, что прорубать арку.

С лоджии сделали прекрасную маленькую отдельную комнатушку. Для этого просто закрыли оконный проем.

Важно! Если превращаете лоджию в отдельное помещение, обязательно утепляйте ее полом с подогревом.
Коридоры превратили в полезные функциональные пространства. Один соединили с санузлом. Сделали из него нишку для стиралки. Другие присоединяем к гостиной и спальной. Разместили в них шкафы-купе.
Особое внимание уделили освещению, так как в п44т обычно не очень светло.
Классические элементы декора не использовали. Колонны, лепнина и громоздкая мебель помещение «утяжеляют», делают его неуютным. Поэтому акцент сделали на более современных оригинальных стилях.
Гостиную «нарядили» в оливковые одежки. Светлые тона ей очень идут. Разбили ее на несколько условных зон. Поставили кресло для чтения, компьютерный столик.

Спальню сделали оригинальной – «исламской». Стиль этот не очень дорогой – для отделки вполне хватило обычного текстиля.
В оформлении детской ориентировались на возраст ребенка. В этом конкретном случае ребенок уже был подростком. Для детей такого возраста лучше всего подходят «независимые» стили – поп арт и лофт. Мебель подобрали с многими функциями. Кровать разместили на тумбе-подиуме, в которую можно складывать одежду и другие вещи.
В дизайне использовали эклектичные стили, объединенные общей цветовой гаммой. Смешали хай тек и провансаль, «поженили» Голландию со Скандинавией.
Дизайн трехкомнатной квартиры в современном стиле

Следующую квартиру сделали в современном стиле, но со студийной планировкой:
· гостиную и кухню превратили в одно сплошное пространство, где одновременно можно готовить, есть и отдыхать;
· оформили квартиру с помощью оригинального элемента – реек из дерева;
· в расцветке соединили ненасыщенные оттенки белого с живостью зеленого.

Место для приема и приготовления пищи
В кухне дерево очень удачно соединили с доминирующим белым цветом. Нашли место и для небольшого гарнитура.
Обеденный стол тоже весьма оригинален. Сам он выполнен из хромированного металла, а его столешница сделана из стекла. Над столом нависает современный «гибкий» бра, оснащенный регулировкой высоты.

Гостиная
Гостиная выглядит очень просторно. Ее главный персонаж – вместительный диван. Справа расположили треножник торшера, слева – необычное панно с весьма реалистичным газоном. Предметы здесь объединяет цвет. Диван и торшер – темновато-коричневые, а у столика и пола светлый оттенок.

Главным элементом условной гостиной, несомненно, является шкаф с телевизионным прямоугольником на зеленом фоне.

Лоджия
Лоджию стилизовали под бар. Получилось очень неплохое место для отдыха.
Важно! Чтобы слегка расширить пространство, потолок нужно чуть наклонить в сторону. Мы так и сделали (на фото лоджии это особенно заметно).

Детская
В детской преобладает бодрящий красный цвет и функциональность. Смогли найти в ней место не только для игр и мягких игрушек, но и для спорта. Понаставили шкафчиков и полок.

Спальная
В спальне опять же, все очень функционально. Поставили столик, который одновременно и ночной, и письменный. Деревянные стенно-потолочные рейки в сочетании с открытой книжной полкой сделали спальню интереснее и уютнее. А однотонные стены чуть расширили пространство.

Ванна
Ванна вышла маленькая, но очень стильная. Коричневато-розовые и белые оттенки в сочетании с подсвеченным зеркалом визуально раздвинули узенькое пространство. Получилось завораживающе.

Дизайн трехкомнатной квартиры 100 кв

Следующая трехкомнатная квартира в 100 квадратов делалась для семейной пары без детей. Муж и жена хотели, чтобы их квартира была свободна от ненужных деталей, но в то же время, чтобы все было максимально уютно и современно.

Квартира сделали концептуальной – в ней присутствует тема птиц, прилетевших в теплые края.
Белая «патлатая» люстра в «гостино-столовой» – это как бы гнездо. В концептуальность квартиры хорошо вписалась и картина с птичьими перьями. Потолок объединённой гостиной и столовой чуть опустили – это сделало помещение более уютным.

Небольшая кухня тоже получилась ничего. Потолочный гипсокартон (стилизованный под бетон) удачно спрятал коммуникации. У одной из стен очень необычный абстрактный декор. Деревянные рейки сделали кухню домашнее. А ее цветовая гамма хорошо сочетается с «гостино-столовой».

У спальни тоже много общего с гостиной. В ней присутствует та же тема «птиц» на абстрактной картине у кроватного изголовья, та же легкость и простор на очень ограниченном пространстве.

В 100-метровке без проблем нашли место и для кабинета. Он получился на редкость удачным – очень эклектичным, креативным и противоречивым. С одной стороны это типичный несентиментальный лофт. Но бежевые тона и игривая мягкая мебель сделали его теплым и домашним. У входной двери повесили весьма откровенный рисунок с бра-подсветкой. Люстру в кабинете лишили симметрии, стены выкрасили в разный цвет.


За «прозрачной» этажеркой наклеили принт с водной синевой. А рядом повесили поп-артовские занавески с морскими буковками. Получился отличный кабинет.

Дизайн коридора-прихожей трехкомнатной квартиры
В дизайне коридора стандартов придерживаться – только вредить. Сужу по собственному опыту. Его лучше сделать квадратным.

Важно! Если он получается уж слишком маленьким, объединяем его с условной гостиной.
Мебель
· шкаф-купе для коридора оптимален. Он достаточно объемен, но и много места не занимает. Купе делаем с открытыми полками;
· в коридор спокойно можем вместить и небольшой комод с зеркалом над ним;
· вместо унылых стульев размещаем мягкие пуфы. Так все будет выглядеть эффектно и оригинально;
· коридор обязательно украшаем. Добавляем замысловатые коврики и пост-модерные скульптуры. Ну, или вазоны на худой конец.
Покрытия
Для коридоров лучше всего постелить покрытия из:
· керамической плитки. Она эстетична, прочна, в течение многих лет не исстирается, ее легко чистить.

·
синтетического линолеума. У такого покрытия самая разнообразная расцветка, оно долговечное и не скользкое;
· кварцвиниловой плитки. Такая плитка не только прочная, но и мягкая. Ее можно стилизовать под что угодно (даже под мрамор);

· плитки из натурального камня. Лучше выбрать матовую из гранита. Жидкость не делает ее скользкой. Минус такой плитки – сравнительно высокая цена.

· ламината. Предпочтение отдаем доскам 32 класса. Это прочный долговечный материал, который не боится влаги. Такой ламинат легко отремонтировать.

Важно! Чтобы «раздвинуть стены», оформляем все в светлых тонах. Такой тон визуально увеличивает пространство. Чтобы раздвинуть узкий коридор, рисуем диагональные изображения.
Стены
Чтобы все выглядело не слишком стандартно, вместо привычных обоев и краски на стенах используем:
· панели из пластика. У них могут быть самые разнообразные цвета и формы. Их очень легко установить.

·
камень. Его лучше класть вместе со штукатуркой. Особенно хорошо он смотрится в дверных проемах;
· панели ДВП и МДФ. Благодаря им стены можно сделать очень оригинальными. Существенный минус таких панелей – недолговечность.

Важно! В коридоре окон нет, поэтому в расцвете стен выбираем светлые тона – это добавит света. Чтобы потолок казался выше, покрываем стены вертикальными широкими полосами.
Потолок
Покраской не ограничиваемся. Потолок можем:
· побелить. Самое простое и недорогое решение. Смотрится весьма неплохо, но только если сделано мастером.

· покрыть декоративной штукатуркой. Она придает потолку объем. С подсветкой и декоративными антресолями все выглядит особенно красиво.

· положить плитку ПВХ. Для потолка ее выпускают в самых разных вариантах – гладком, рельефном, имитирующем камень и дерево;
· установить подвесной потолок из гипсокартона. В него легко встраивать светильники, он хорошо камуфлирует различные дефекты «настоящего» потолка.

Комбинирование стилей
Стили можно интересно комбинировать и создавать нечто свое, ни на что не похожее:
· к примеру, классические детали помещения можно «осовременить» с помощью рисунков, орнаментов и тканей. В нижеприведенном примере классический пуф мы сделали «модерным», однотонным. Мебель покрыли незамысловатым текстилем, «закрасили» витиеватый орнамент на камине.

создать микс можно даже и без кардинальных изменений. Просто добавляем что-нибудь нетипичное для того или иного стиля. К примеру, добавили ковер с графикой и яркий диван. Это создало интересную смесь классики и контемпорари.

Вообще же в дизайне уже существуют целые направления, построенные на комбинировании стилей. Главные из них – это фьюжн, эклектика и китч:
· в фьюжн спокойно соседствуют барокко и модерн, восток и запад. Главное – создать естественность и отсутствие какого-либо плана в оформлении. Цвета берем не какие попало, а только те, которые хорошо друг с другом сочетаются;

·
китч. В китче главное – комбинировать динамичные, яркие цвета и стили, максимально наполнять пространство разнообразными мелкими деталями – игрушками, статуэтками, бантиками.

эклектика. Эклектика самая консервативная из этой тройки. В ней между собой комбинируем только традиционные стили, а не все подряд. Барокко сочетаем с рококо, а скандинавский стиль с модерном. В эклектике главный акцент делаем на сочетании пастельных тонов с более яркими цветами.


Цветовые решения
Цвет очень важен – он пространство суживает и расширяет, делает помещение уютным или деловым.
Цветовая основа
В качестве цветовой основы берем пол, стены и потолок. Иногда эту роль также играет мебель большого размера. Цвет основы одинаковым не делаем. Лучше используем похожие оттенки (например, белого цвета)


Важно! Правильно подобрать цвета всегда помогает компьютерный коллаж. Просто размещаем рядом в «фотошопе» различные элементы квартиры и смотрим, как они сочетаются по цвету.

Стиль и расцветка
Очень важно, чтобы для каждого стиля была подобрана правильная расцветка:
· Если отдали предпочтение винтажу, шебби-шику или провансу, то лучше оформлять помещение в светлые пастельные тона. Слишком яркие оттенки все испортят;
· для ар-деко, классики и модерна яркие тона также противопоказаны. Для них естественны в меру темные хорошо насыщенные контрастные цвета;
· для скандинавского стиля характерны светлые цвета с небольшими вкраплениями ярких оттенков;
· если отдаете предпочтение бохо-шику, ретро или поп-арту, то делайте все в квартире разноцветным. Цветовую гамму подбирайте как можно ярче;

приглушенные темноватые цвета идеально подходят для жилья в английском стиле и лофта;


экостиль, кантри и контемпорари любят природу. Им подходят цвет листвы, морской воды, песка, земли.

Выбор дизайна ванной комнаты
12 схем обмана при ремонте квартир




Услуги по ремонту
Заказчикам
Компания

Контакты
Ответы на вопросы