обо мне и моей бригаде

Строганов Кирилл
Я занимаюсь ремонтом более 15 лет. Самое приятное для меня - солидный список довольных клиентов.
Моя главная задача - организовать процесс ремонта таким образом, что бы проходил легко и приятно при взаимодействии со мной и моей командой. Я максимально открыт для вас.
Помогу подобрать современный материал, как дорогой так и не дорогой.
Оптимизирую смету. Многолетний опыт позволяет мне предложить Вам оптимально снизить стоимость ремонта без потери качества даже в классе премиум.
Мне удалось собрать отличную команду, которая работает слаженно. Это позволяет четко выдерживать сроки работ, не выходить за рамки согласованной сметы и экономить ваше время и силы.
К своей работе мы подходим с удовольствием начиная от создания дизайн проекта и заканчивая советами по расстановке мебели и декору помещения.
Дизайн совмещенного санузла: подготовительный этап
Многие принимают решение: разобрав перегородку, сделать совмещенный санузел с целью экономии пространства. Благодаря реконструкции в санузле появляется возможность поместить стиральную машину, необходимую мебель. Кроме того, убрав перегородку, можно значительно сэкономить на отделочных материалах.
Стандартная планировка не позволяет даже установить в ванной стиральную машину
Перед тем, как приступить непосредственно к демонтажу перегородки между комнатами санузла, последующим ремонтным работам, я, как прораб, продумываю все мелочи и необходимые процедуры.
- В первую очередь составляю подробный план перепланировки.
- Готовый план наш специалист помогает согласовать в БТИ. Конечно, приходится тратить время, зато фирма страхует своих заказчиков в дальнейшем от неприятностей в виде большого штрафа.
- Рассчитываем потребность отделочных материалов, расходы на их приобретение, на покупку новой сантехники, оплату юридического оформления.
ЭТО ВАЖНО: при разработке проекта объединенного санузла следует предусмотреть возможность свободного доступа к коммуникациям. Нельзя ослаблять несущие стены и расширять площадь санузла за счет жилых помещений. Если вы решили заменить водяной полотенцесушитель, вам также необходимо согласовать свои действия в ДЭЗ.
СОВЕТ: имейте в виду, что обязательное согласование в БТИ необходимо не только в целях соблюдения мер безопасности. Без согласованного плана перепланировки вы не сможете в будущем осуществить продажу или другие операции с квартирой.
Порядок выполнения работ при совмещении ванной комнаты и туалета
После того, как пройдены все инстанции и получены разрешительные документы, заготавливаем материалы и сантехническое оборудование. Затем мы приступаем непосредственно к работе по составленному заранее поэтапному плану.
- Первым делом демонтируем старую сантехнику, облицовку стен и трубопровод.
- Аккуратно разбираем перегородку между комнатами. При этом стараемся не повредить системы отопления и канализации.
- По желанию клиента закладываем одну из дверей пеноблоком, или зашиваем проем гипсокартоном.
- Делаем битумную гидроизоляцию на пол. Теперь даже в случае возможного протекания воды соседи на нижних этажах будут избавлены от затопления, а хозяин квартиры – от лишних неприятностей.
- Перед тем, как приступить к монтажу новых коммуникаций, монтируем вентиляцию. Если она не будет работать, то в помещении постоянно будет скапливаться сырость, что приведет к образованию плесени и почернению стен.
- Современный дизайн ванной невозможен без наличия розеток и выключателей. Для прокладки электропроводки в санузле мы используем трехжильный кабель с обязательным заземлением. Электрическое оборудование выбирается только с влагоустойчивыми характеристиками.
- Выравниваем пол стяжкой (в дальнейшем на нее укладывается ленточная система подогрева).
- Следующий этап работы: обработка стен, потолка, пола.
- После полного высыхания поверхностей монтируется новый трубопровод, устанавливаются водомеры, новая сантехника, водонагреватели, мебель и другие приборы.
Последним этапом работ становится оформление санузла элементами декора.
ЭТО ВАЖНО: используйте для отделки только те материалы, которые имеют влагоустойчивые характеристики.
СОВЕТ: делайте пол слегка покатым к центру, с высоким порожком на входе – это предохранит переливание воды в случае небольшого затопления.
Я изложил вкратце весь порядок работ, которые наши специалисты выполняют в ходе ремонта совмещенной ванной после демонтажа перегородки. А теперь рассмотрим более подробно некоторые моменты.
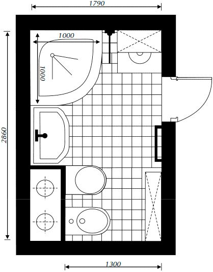
Планировка ванной и туалета
Приступая к составлению дизайн проекта ванной и туалета, вначале делаем расчет площади помещения после объединения комнат. Определяем на плане и согласовываем с заказчиком оптимальные места для установки унитаза, душевой кабины, стиральной машины, мебели. Исходя из этого, намечаем места выхода трубопровода, вентиляционной, канализационной системы, а также отмечаем точки для монтажа розеток и выключателей.
На схеме до сантиметра рассчитаны габариты санузла со всей «начинкой»
СОВЕТ: сделайте несколько чертежей: для коммуникаций, для электропроводки, для сантехники и мебели.
Коммуникации
Основываясь на плане размещения сантехники, прокладываем водопровод и слив. Если вы оставляете ванную и унитаз на своих местах, то разводку можно оставить на прежнем месте. В таком случае ее просто прикрывают гипсокартонными панелями. По возможности я рекомендую прокладывать трубы в стене, особенно если планируется ванну заменить душевой кабинкой и перенести ее в другое место.
На фото видно, что после окончательной заделки стен снаружи останутся только выводы для подключения кранов и спуска воды
ЭТО ВАЖНО: не удаляйте от канализационной трубы ванну или душевую кабину на большое расстояние, поскольку для водоотвода необходимо выдержать определенный уклон.
Электропроводка
Планируя электропроводку, сверяемся с планом размещения сантехники и мебели. Тут необходимо продумать все до мельчайших деталей:
- Выключатели;
- Количество светильников (потолочные светильники, бра у зеркала, дизайнерская подсветка);
- Розетки (для водонагревателя, стиральной машины, возле зеркала, для электрического полотенцесушителя).
Примерно так должен выглядеть план-схема прокладки электропроводки в совмещенном санузле
ЭТО ВАЖНО: если вы не имеете достаточного опыта работы с электричеством, пригласите специалиста. Он обеспечит правильность и безопасность подключения, даст дельный совет по дальнейшей эксплуатации.
Отделка стен, потолка и пола
Установка системы теплого пола – работа для профессионала, так как для совмещенного санузла нужна хорошая гидро и электроизоляция. Исходя из опыта, кафель рекомендую выбирать с матовым покрытием, чтобы не скользил.
Стены предварительно обрабатываем грунтовкой, затем выравниваем с помощью гипсовой шпатлевки, шлифуем и снова грунтуем. Теперь стены готовы для покрытия керамической плиткой. Существуют другие материалы для отделки стен в ванной - такие как пластиковые панели, штукатурка, влагоустойчивая эмаль, натуральный камень.
Однако из практических, экономических и эстетических соображений я советую использовать керамическую плитку: ее легче мыть, она прочнее и долговечнее, а при существующем ассортименте можно выбрать плитку под современный дизайн ванной.
СОВЕТ: категорически не рекомендую использовать для отделки стен обои. Клеящие смеси для них основаны на воде, поэтому очень скоро обои, даже флизелиновые, начнут отслаиваться от стен, потеряют первоначальный вид.
Для отделки потолка существует множество технологий, которые отличаются практическими, функциональными и финансовыми характеристиками. К примеру, для санузла отлично подходят зеркальные панели: они устойчивы к влаге, визуально увеличивают высоту в два раза. Благодаря зеркальному потолку в помещении станет значительно светлее.
Зеркальный потолок стирает грани пространства
Существуют и более экономные варианты:
- Натяжной потолок из поливиниловой пленки;
- Пластиковые панели;
- Влагоустойчивый гипсокартон;
- Штукатурка с покрытием водоэмульсионной или акриловой краской.
СОВЕТ: основываясь на своем опыте совмещения самых разнообразных ванных комнат и туалетов, рекомендую при выборе любого варианта опираться не только на свои финансовые возможности и предпочтения. Учтите также практичность выбираемых материалов, и конечно их экологическую безвредность.
Заботясь о здоровье своей семьи, лучше немного переплатить, приобретая экологически чистые материалы, но быть уверенным в том, что ваш дом безопасен.
Интерьер ванной комнаты, совмещенной с туалетом
Несмотря на объединение двух комнат, полученная площадь не всегда способствует размаху фантазии при оформлении интерьера. Поэтому, чтобы поместить в сравнительно небольшом пространстве все необходимое, мне часто приходится прибегать к дизайнерским хитростям.
Подбор сантехники
Для небольших совмещенных санузлов своим заказчикам я советую выбирать сантехнику, исходя из соображений практичности, экономии площади и эстетичности. Поэтому старую чугунную ванну нам часто приходится заменять душевым боксом. В зависимости от получаемой после объединения площади, я предлагаю своим клиентам приобрести кабину средних размеров, с глубоким акриловым поддоном: она занимает мало места, но при этом сохраняется возможность принимать ванну.
Унитаз и раковину тоже рекомендую выбирать компактные. Под раковину можно установить тумбу, тем самым решив несколько проблем:
- Скрываются водопроводные трубы для слива;
- Тумба одновременно служит дополнительным элементом мебели, с местом для хранения средств бытовой химии;
- Грамотно подобранная тумба в сочетании с красивой раковиной - это еще один элемент дизайна ванной.
ЭТО ВАЖНО: унитаз и раковину лучше выбирать от одного производителя, это поможет выдержать единую линию дизайна.
СОВЕТ: если позволяет площадь, установите в санузле биде.
Увеличение пространства с помощью дизайнерских хитростей
Поскольку ванная и туалет после объединения представляют единую комнату, не советую делить пространство на зоны. Выдерживайте дизайн в едином стиле - это создаст ощущение просторного помещения. Усилить эффект получится с помощью больших зеркал и нескольких источников света. При желании можно оформить зеркальными панелями полностью одну из стен или ее часть.
Широкое зеркало над раковиной
СОВЕТ: стеклянная поверхность зеркала постоянно запотевает. Поэтому предусмотрите его подогрев.
Следуя моде, большинство моих заказчиков выбирают верхнее освещение на основе точечных светильников. Поскольку санузел - это место, которое должно быть хорошо и равномерно освещено, наши монтажники размещают подсветку равномерно по всему периметру потолка.
Дополнительное освещение в виде направленной подсветки над зеркалом можно сделать, используя бра современного дизайна с матовыми плафонами.
ЭТО ВАЖНО: при выборе осветительных приборов убедитесь, что они подходят для использования в помещениях с повышенной влажностью.
Цветовая гамма
Учитывая, что стены, разделяющей санузел, уже нет, при покупке плитки вы сможете серьезно сэкономить. Благодаря этому появляется возможность приобрести материал более высокого качества.
Иногда клиенты не могут позволить себе услуги профессионального дизайнера. В этих случаях, основываясь на собственном опыте, я сам помогаю им определиться с цветовой гаммой и оформлением. Выбирая цвет для небольшого совмещенного санузла, я преследую главную задачу - визуально увеличить комнату, создать ощущение наполненности воздухом - поэтому отдаю предпочтение светлым оттенкам.
Однако, чтобы помещение в светлых тонах не выглядело стерильным и неуютным, в зоне душа можно использовать плитку либо мозаику контрастного цвета. Для поддержания единой линии дизайна для пола желательно подобрать плитку такого же цвета. Дополнить оформление можно с помощью декоративных вставок, панно и бордюров.
Плитка на полу и стенах выдержана в единой цветовой гамме, дополнена декорированной плиткой и бордюром с одинаковым орнаментом
Иногда в просторной ванной плитку для пола выкладываем по диагонали.
Плитка двух контрастных цветов, выложенная диагональным способом в шахматном порядке, кардинально меняет геометрию комнаты, что выглядит весьма эффектно
Современные идеи дизайна ванной, совмещенной с туалетом
Не могу сказать, что выдержать определенный стиль при ремонте совмещенной ванной является легкой задачей. Необходимо сделать санузел:
- Удобным;
- Компактным;
- Наполненным практичными современными деталями;
- Красивым и уютным.
Сделав немало подобных объединений ванной и туалета в единый санузел, я предпочитаю современный классический интерьер, поскольку его дизайн наиболее соответствует всем вышеперечисленным требованиям.
Современный ремонт ванной комнаты в классическом стиле
- Светлые стены и пол визуально расширяют помещение;
- Современная компактная сантехника, мебель позволяют существенно сэкономить площадь;
- Освещение и зеркала создают эффект просторного помещения.
Современные технологии позволяют осуществить самые смелые дизайнерские задумки даже в малогабаритных квартирах. При достаточной площади, наличии средств и фантазии ванную комнату можно превратить в маленький оазис, наполненный весенней зеленью, каюту подводной лодки, либо в японскую купель.
Дизайн просторной ванной комнаты в восточном стиле
Существует множество не менее привлекательных дизайнерских стилей, отличающихся оригинальным внешним видом, при этом достаточно уютных и удобных в использовании:
- Ретро стиль с чугунной ванной на кривых ножках, латунным смесителем, белоснежной кафельной плиткой и ситцевой занавеской на окне не оставит равнодушной ни одну хозяйку:
Дизайн ванной в стиле ретро
- Стиль хай-тек со своей эргономичностью, глянцевыми поверхностями и футуристической подсветкой понравится любому современному мужчине:
Футуристическая ванная в стиле хай-тек
- Арт-деко с контрастными цветовыми решениями всегда нравится молодежи:
Изысканная ванная Арт-деко
- Классика остается классикой - универсальной и удовлетворяющей большинству вкусов:
Стильная классическая ванная комната
Дерзайте, и пусть ваша ванная станет местом, где можно не только осуществить гигиенические процедуры, но и приятно расслабиться после трудового дня.



Услуги по ремонту
Заказчикам
Компания

Контакты
Ответы на вопросы