обо мне и моей бригаде

Строганов Кирилл
Я занимаюсь ремонтом более 15 лет. Самое приятное для меня - солидный список довольных клиентов.
Моя главная задача - организовать процесс ремонта таким образом, что бы проходил легко и приятно при взаимодействии со мной и моей командой. Я максимально открыт для вас.
Помогу подобрать современный материал, как дорогой так и не дорогой.
Оптимизирую смету. Многолетний опыт позволяет мне предложить Вам оптимально снизить стоимость ремонта без потери качества даже в классе премиум.
Мне удалось собрать отличную команду, которая работает слаженно. Это позволяет четко выдерживать сроки работ, не выходить за рамки согласованной сметы и экономить ваше время и силы.
К своей работе мы подходим с удовольствием начиная от создания дизайн проекта и заканчивая советами по расстановке мебели и декору помещения.
Не знаешь как установить межкомнатную дверь своими руками ? Мы научим
В статье обзорно представлены разновидности межкомнатных дверей. Рассказывается на какой стадии ремонта оптимально монтировать такие конструкции. Детально изложен порядок самостоятельных монтажных работ. Прилагаются подробные инструкции с фотоматериалами.
Как установить межкомнатную дверь своими руками
Для работ не обязательно привлекать мастеров, просто нужно знать, как установить межкомнатную дверь своими руками, и следовать предложенному алгоритму.
Этапы установки
Решать вопросы со временем, когда устанавливать межкомнатные двери при ремонте, логично на начальной его стадии.
Здесь есть много факторов:
- Грамотный расчёт параметров проёма для двери и коробки новой конструкции.
- Решение вопроса, в каком направлении будет открываться дверь.
- Сохранить или изменить позицию дверного проёма.
- Распланировка расположения мебели.
- Сопоставление времени года с температурой в помещении и материалами двери. Например, прежде, чем вставлять дома деревянную межкомнатную дверь, стоит учесть, что она немного просаживается в условиях перепадов температуры. А вот аналог из металлопластика не боится термальных скачков и влажности.
Далее внимательно следуйте пошаговой инструкции, как вставляем межкомнатные двери своими руками. Начинается процесс с подготовительных действий.
Звоните! 8 (499) 390-95-97
Подготовительные операции
На каком бы этапе ремонта не устанавливались двери, сначала выполняются операции, образующие много мусора и пыли. Например:
- Монтаж и демонтаж окон.
- Операции со стенами и потолком: оштукатуривание, выравнивание, обработка грунтовкой, покраска и т.д.
- Черновые работы с полом.
После чего вопрос, на каком этапе ремонта устанавливают такие двери, имеет такие вариации решения:
- Необходимость в расширении проёма. В этом случае комнатные двери лучше ставить до чистовых отделочных работ.
- Применить стадийный монтаж. При таком раскладе вставлять коробку нужно ещё до чистовых операций со стенами и потолком. А полотно с наличниками – после них. Коробку только следует защитить от грязи – покрыть малярной лентой.
Разновидности межкомнатных дверей
Такие двери отличаются по материалу. Под этот критерий попадают и дверное полотно, и рама.
Для изготовления полотна применяют:
- ДВП. Это самая бюджетная вариация. Это деревянная рама. К ней монтирован ламинированный материал (ДВП). У этой версии слабая шумоизоляция, влагостойкость. К тому жен она довольно хрупкая.
- МДФ. У этой версии ценник и характеристики значительно выше.
- Древесина. Самая дорогая версия. Сорта могут быть различные, сосна, дуб, кедр и т.д.
Эти же варианты применяются для изготовления коробок. Самая худшая вариация – ДВП. Оптимальный вариант – ламинированное дерево. Его не нужно покрывать краской. Однако на рабочий срок влияет качество плёнки.
В последнее время большую популярность завоёвывают пластиковые двери.
Также комнатные двери различают по методу открывания. По этому критерию есть такие виды:
Распашные. Их монтаж происходит на петли в вертикальной позиции коробки. Когда они закрываются, их полотно плотно помещается в паз. Что нужно чтобы поставить такую дверь? Главное требование – наличие достаточного пространства для её свободного открывания.

Раздвижные. Устанавливают двери такого типа в ограниченном пространстве. Также они включаются в конструкцию перегородок, когда большие помещения подразделяются на зоны. Они могут иметь одну или две створки. Створки монтируются на специальные ролики, двигающиеся по направляющим компонентам. Полотно движется легко и свободно.

Раскладные двери. По формату – это гармошка. Её образуют створки, соединённые шарнирным способом. Когда такие двери закрываются, то поворачиваются по окружности вертикального стержня. В крайней позиции они параллельны друг другу.
Обычно ставим такую дверь в проем с большими параметрами. В этих дверях могут быть одна или две части. Они смещаются в различные стороны. Как правило, эти конструкции имеют скромную массу. Створки могут частично остекляться.

Качающиеся. Это вариация распашного вида. Может иметь одну или две створки. Коробка значительно превосходит полотно по параметрам. Открывать дверь с такой системой можно и во внутреннюю, и во внешнюю сторону.

Решая вопрос, какая дверь лучше, чтоб поставить в квартиру, учитывайте и параметры. Стандарты в различных странах варьируются. Например, в России шаблонная ширина распашных моделей это 60 – 90 см. А их шаг – 10 см.
Какую дверь лучше поставить в квартиру, решаете сами, исходя из имеющихся условий и задач.
Не помешает изучить следующую таблицу:

Какую дверь лучше размещать в жилой комнате? Такую, чья ширина составляет 60 – 120 см. А высота – 200 см.
Двери, каких параметров лучше устанавливать в ванну? Критерий по ширине – минимум 60 см, по высоте: 190 – 200 см.
Дверное полотно, монтирующееся на кухне, должно иметь минимальную ширину 70 см, а высоту – 200 см.
Выбор двери по ширине
Когда планируется заменить двери в квартире, первым делом измеряем имеющееся полотно. Если планируется первый монтаж, определяем наиболее узкий участок в проёме. Измеряем его. Так определяем, какой блок по ширине требуется.
Это комплект из полотна и коробки, внешние размеры которой должны уступать вычисленной величине. Пример того, как правильно ставить дверь своими руками, соблюдая данную арифметику: измерение определило значение 78 см, подбираем блок на 70 см.
Выбор по комплектации
По сборке продукция имеет три разновидности:
- Одно полотно, без коробки.
- Полотно + коробка, которая представлена отдельными досками. Запиливаем углы, соединяем доски. Вешаем петли.
- Полный комплект. Коробка уже готова. Петли – монтированы. Только подрезаем боковые части по высоте. Выставляем изделие ровно. Закрепляем.
Пример комплекта с добором. Ещё в нём есть коробка и наличники.

Алгоритм установки
Далее рассмотрим, как установить межкомнатную дверь своими руками с учётом разных нюансов. Они зависят от вида приобретённой комплектации.
Рассматривается пошаговая инструкция, учитывающая приведённые факторы. Предлагаю самый сложный и самый простой методы.
Фактор первый касается варианта с коробкой, которую нужно собирать. Обычно это:
- Две длинные стойки, находящиеся по бокам.
- Перекладина. Её длина меньше.
Собираем эти элементы самостоятельно по одному из двух методов:
- Под углом 45 градусов. Работа очень эстетичная, но сложная. Нужна скрупулёзная точность пропила и полное отсутствие щелей. Обычно работаем стуслом.

- Стыковая установка под углом 90 градусов. Если нужно собрать коробку самому, то рекомендую именно данный метод. Он намного легче. Здесь важно устранить часть выступа на стыковом участке стоек и перекладины.
Как правильно провести работу здесь? Отрезаем часть дерева для перекладины. У этого отрезка должен быть серьёзный запас. Отрезок приставляем к углу. Обводим ту зону, которая препятствует соединению. Используя стамеску, устраняем лишнюю часть.
Делаем пару замеров. Производим соединение. Ровно ставим угол, чтобы рельеф совпадал.
В такой позиции сверлим дырки под саморезы. Используем сверло, которое по диаметру уступает крепежу на 1-2 мм.
Соединяем данный узел, удерживая 90 градусов и полное совпадение рельефа.

Какой бы метод не был выбран, сначала запиливаем стойки и перекладину с одной стороны. Складывает эти элементы в коробку. Контролируем при этом точность соединения.
Затем вычисляем высоту боковин коробки.
Что нужно сделать на это стадии? В сложенной версии по внутренней стороне стойки отмеряем нужную длину. Стойки могут несколько отличаться размерами. У пола могут быть неровности. Это учитываем.
Поэтому используем уровень, определяем ровность пола. Если она идеальная, то отличий у стоек не будет.
При наличии отклонения, развиваем длину одной стойки. Обычно – на 2-5 мм. Этого хватает, чтобы исключить перекашивание дверей.
Рассчитывая высоту, понимаем, что стойка по длине должна превосходить полотно на 1-2 см.
Оставляем под дверью расстояние в 1 см, если под дверь не планируется стелить коврик. При его наличии величину зазора увеличиваем.
Благодаря зазорам в помещение обеспечивается нормальная вентиляция.
Схематично операции выглядят так:
<з> 
Затем отпиливаем перекладину по длине. При стыке под 45 градусами запиливаем её с другой стороны.
Длина перекладины получается такой, что в сложенной версии дистанция между стойками превосходила ширину полотна. Наименьший зазор – 7 мм. Из этого 2 мм выделено для петель. 3 мм – дополнительные зазоры.
Учитываем, что от влажности варьируются параметры дверей (кроме пластиковых). Поэтому сохраняем зазоры в 5-6 см. А когда ставим двери в ванную и туалет, то – 7-9 мм.
Таким образом, получаются зазоры:
- для петель – 5-6 мм,
- по боковым сторонам, в верхней и нижней части – 3 мм.
- с нижней стороны – 1-2 см.
Затем раскладываем коробку на полу. При обнаружении ошибок в стыковке устраняем их наждачкой. Чем выше точность совпадения, тем скромнее щель.
Процесс сборки
Какие двери бы, и из каких материалов не ставили, под крепления обязательно создаём отверстия. Так материал не порвёт.
По диаметру сверло уступает саморезу на 1 мм.
Складываем коробку, ставим углы 90 градусов. Фиксируя стойку и перекладину в этой позиции, сверлим дырки.
Если работает над созданием двери в комнату своими руками и в одиночку, то для это операции выставьте правильно коробку и на время зафиксируйте её парой поперечных брусьев: сверху и снизу.
Мы обычно работаем тандемом: один держит дверь, второй – сверлит.
Когда соединяется короб под прямым углом, в верхнем участке создаём две дырки, позифионируя сверло строго вниз.
Звоните! 8 (499) 390-95-97
Работы с петлями
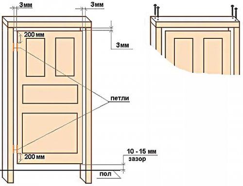
Как поставить двери межкомнатные с учётом числа петель? Обычно для монтажа хватает двух петель. Для надёжности задействуем 3 петли.
Их ставим с отступом 20-25 см от крайней стороны полотна. Если изделие деревянное, для петли берём участок без сучков. Первым делом петли монтируем к полотну.
Работаем по такому порядку:
- К обозначенным зонам прикладываем петли, обозначаем контуры. Используем лезвие ножа.
- Делаем выемку фрезером на толщину петли.
- Размещение петли в канавке. Её плоскость - на одной линии с плоскостью полотна.
- Крепим петлю саморезами,
Монтировав пару петель, ставим полотно в коробку. Соблюдаем необходимые зазоры. Полотно плотно фиксируем клиньями. Выставляем его ровно.
Далее размечаем зоны позиций ответных элементов петель.
Простейший метод таков – снимаем монтированную петлю и возвращаем на место. По обозначениям создаём выемку. Критерий по её глубине – в ней устраивается петля, плоскость которой идентична линии плоскости короба.
Монтаж коробки
Как вставляется дверь в проем грамотно? Сначала ликвидируем из проёма все хрупкие элементы. Это касается излишне сыпучей стены – её обрабатываем грунтовкой мощного проникновения.
Солидные дыры заполняем штукатуркой. Серьёзные выступы стёсываем.
Когда проём готов, проще устанавливать межкомнатную дверь с коробкой, даже самостоятельно.
Её сначала выставляем без полотна, строго сохраняя вертикаль. Её контроль обеспечиваем уровнем и отвесом.
Как поставить межкомнатную дверь максимально ровно? Работаем уровнем и отвесом. На полу на время ставим распорки. По углам располагаем укосы. Это мера для достижения лучшей жёсткости.
Как вставить межкомнатную дверь, чтобы она лучше открывалась? Для этого её обязательно рассчитываем принцип её оптимального открывания.
Вставляем её в единую плоскость со стеной. Если та неровная, ставим коробку вертикально.
Если вы решили не привлекать мастеров для таких работ, то следующая схема поможет. Так нужно правильно ставить межкомнатную дверь своими руками, соблюдая единство плоскостей:

После выбора позиции крепим дверь. Используем монтажные клинья. С их помощью проще устанавливать межкомнатные двери в квартире, даже своими руками.
Клинья – это деревянные изделия треугольной формы. Также нередко задействуем бруски из пластика.
Чтобы установить межкомнатные двери по такой методике, клинья располагаем по двум сторонам от перекладины. А затем и над стойками.
Так определяем и сохраняем позицию коробки к проёму. После чего ещё анализируем степень вертикальности стоек в двух плоскостях. Стойки не должны никак наклоняться.
Далее предложена схема, как установить межкомнатную дверь своими руками с применением клиньев:

После этого клинья ставим внизу с шагом 50-60 см. Контролируем ровность стоек. Расклиниваем по центру поперечную планку. Если никакие компоненты не погнулись, можно крепить коробку.
Монтаж двери
Установить двери можно двумя методами крепежей:
- Сквозной. Крепим сразу к стене.
- Используем монтажные пластины.
Первый метод очень надёжный. Но в коробке будет крепёжные шляпки. Да и стена должна быть подходящей.
Поставить межкомнатную дверь своими усилиями проще всего по методу 2. Здесь просто завинчиваем пару саморезов под петли (в подходящие вырезы). Должны они быть и под пластиной ответной стороны замка.
В тех выемках, что мы вырезали, сверлим ещё дырки. Это мера, чтобы не угодить в дырки под крепежи петель, либо ответной стороны. Головки саморезов топим.
Установить межкомнатные двери можно и по потайному методу. С тыльной части коробки монтируем пластины. Здесь сгодятся и металлические, и гипсокартонные изделия.
Стадия запенивания
После обозначенных операций заполняем пустоты между стеной и самой коробкой. Применяем монтажную пену. Стену смачиваем водой, применяя пульверизатор. Выдавливаем пену. Заполняем максимум 2/3 пространства. Больше – нельзя, иначе коробка выдавится внутрь.
Пена не должна покоробить дверь. Для этого ставим распорки.
После полимеризации пены (её интервал отражён на упаковке) распорки устраняем. Весим полотно. Проверяем движение двери.
После чего проводим отделочные операции. Ставим откосы, наличники. При надобности не обходится и без доборов.
Звоните! 8 (499) 390-95-97
Подбор двери для кухни
Когда решается вопрос с подбором двери на кухню, следует отталкиваться от таких критериев:
Первый: Вид изделия по материалу:
- Деревянный. Этот вариант прочный, но тяжёлый. К тому же впитывает влагу. Находясь на кухне, он будет часто деформироваться.
- Ламинированный МДФ. Он легче и дешевле, но менее прочнее.
- МДФ со шпонами. Стоек к влаге и механическим воздействиям. Весит немного. Его легко реставрировать.
Второй критерий: по способу открывания. Виды были перечислены выше. Выбрать на кухню раздвижную, качающуюся или прочую версию решаете сами с учётом условий в этом помещении и ваших задач.
Например, если кухня большая и дома много места, логично поставить качающиеся модификации.
А какая дверь лучше ставится на кухню со скромными параметрами? В таких случаях монтируем гармошку. Можем поставить и купе, если как минимум одна стена параллельна пот отношению к проёму. А по длине она не уступает ширине полотна.
Особенности монтажа
Как нужно устанавливать дверь на кухне? Во-первых, эти работы поводим только после всех отделочных операций и укладки напольного покрытия.
Во-вторых – скрупулёзно замеряем проём и стены. Подбираем дверь под них.
Если работа идёт со сбором коробки, то здесь процесс следует аналогично (он был выше описан в сборе коробки). Только полотно и вертикальные стойки должен отделять зазор 2 мм.
Петли обустраиваем аналогично.
Также обустраиваем замок. Прикладываем перекладину. В стыковых местах сверлим дырки. Для соединения деталей применяем саморезы.

Надеваем на петли полотно. Подрезаем стойки. Оставляем по 2-3 см ниже крайней стороны двери. Учитываем при этом и уровень пола.
Монтируем дверную коробку на кухню, сохраняя постоянную фиксацию такой конструкции. Помощники в этом – деревянные клинья. Их вбиваем между верхней стороной проёма и перекладиной.
Фиксируем петлевой механизм к стене, строго выверяя вертикальность. Дверь на данном участке не должно под влиянием своего веса распахиваться или закрываться.
Только, достигнув нужного результата, дверь в проем помещаем и фиксируем основательно.
Затем дверь снова снимаем с петель. Имеющиеся пустоты заполняем специальной пеной. Чтобы не испортить стойки, покрываем их полностью малярным скотчем. Чтобы они не погнулись от пены, ставим в проём распорки. Между ними и косяком прокладываем мягкий материал.
Когда пена становится твёрдой (через сутки) устраняем её излишки, а также скотч.
Последняя фаза – установка наличников. Их размещаем на полу. Плотно прижимаем к стойкам. Обозначаем вертикальный параметр. Размечаем угол 45 градусов, устраняем лишнее. Для крепление наличником используем саморезы или жидкие гвозди.

Наличник на верхнюю сторону монтируем так же. Но немного оттягиваем верха наличников сбоку. За ними ставим наличник в горизонтальной позиции. Выравниваем его и размечаем.
Когда наличник сверху получит нужную форму, крепим его к перекладине.

Ванна и туалет
В любой нормальной квартире санузел оснащается дверью. Возникает логичный вопрос, а как же устанавливать двери в ванную и туалет?
Ставим конструкции по аналогичной технологии, но соблюдаем некоторые нюансы:
- Напольное покрытие и полотно должен отделять зазор. Это залог вентиляции.
- Обязателен монтаж порожка. Это мера против потопа.
Часто у хозяев имеется вопрос, а как устанавливать дверь в ванную комнату своими руками при условиях очень узкого коридора? Это третий нюанс – монтаж делаем так, чтобы открытие двери происходило внутрь помещения.
Какие двери оптимальны для санузла? Те, что легко справляются с термальными перепадами и солидной влажностью.
Чаще всего ставится деревянное изделие. Это хороший вариант при качественной вентиляции и защите материала.
Нередко в ванную комнату монтируем изделия из ПВХ. Это бюджетная и влагостойкая версия.
Те, кто любит изящные решения и имеет хороший бюджет, предпочитает варианты из калёного стекла.
Что касается конструкции, то в ванную комнату чаще всего монтируем распашные модели.
Процесс установки
Сначала следует подготовка проёма. Делаем нужные замеры. У распашных моделей порожек – это нижняя сторона лудки. Но есть версии с тремя составляющими. Высота порожка здесь – 5 см. От него замеряем высоту проёма, не забываем про зазор. Дверь в итоге поднимается на 10 см.

Плотно имеет шаблонную высоту 200 мс. Проём в это помещении – 190 см. Его расширяем или уменьшаем длину двери. Стеклянные и пластиковые версии таким операциям не поддаются.
В квартирах стена ванной обычно имеет плотность 4-5 см. Толщина керамической отделки – примерно 1,5 см. Коробка не должна превосходить данные параметры.
Как установить дверь в ванную? Соблюдайте эти критерии и последующий инструктаж.
Конструкция подразумевает наличие порожка. Хоть он и создаёт некоторый дискомфорт при ходьбе, он необходим в целях безопасности.
Можно ли сделать монтаж без него? Можно, если ванную и коридор отделяет перепад на полу. Для этого потребуется поднимать пол. Это очень трудно и дорого. Поэтому вариант с порогом – наиболее оптимальный
Если в коробке отсутствует нижняя перемычка, ставим любой порожек, устойчивый к влаге и износам. Обычно это стальные, бетонные, алюминиевые изделия.
Если взяли разобранную версию, делаем её сборку на полу. Соблюдаем необходимые зазоры. Они отражены в этой схеме:

Согласно ГОСТу 6629-88 полотно и пол должно отделять 17-20 мм. Порог выступает на кафельным покрытием пола на 6 мм. Столько же составляет зазор между порогом и нижней торцевой частью полотна.
На стойке отступаем по 25 см с верхней и нижней стороны. Обозначаем позиции крепежей петель. Для выборки применяем стамеску. Крепим петли.
Далее можно эту конструкцию устанавливать в проём. Ставим её по уровню. Для фиксации используем деревянные клинья.
К стене коробку монтируем, применяя саморезы и дюбели. Ещё раз проверяем работу уровнем. Заполняем пеной пустоты, но только с одной стороны. Когда пена затвердеет, заполняем щели с другой стороны.
Для герметизации порога применяем силикон. Размещаем его со стороны помещения.
Если через сутки система пошатывается, вбиваем ещё и анкеры.
Перед тем, как полотно поставить на требуемую позицию, врезаем замки, ручки и петли.
Обычно ставим защёлкивающийся замок изнутри. Он возвышен над полом на 85-90 см.
Дл него в торцевой части полотна делаем паз. В работе применяем стамеску и сверло. Следующие шаги:
- На двери обозначаем позицию дырки для ручки. Она идентична квадратному гнезду замка.
- Сверлим дырку. Используем перьевое сверло, имеющее диаметр 2 см.
- Ставим замок в паз. Для его крепежа торцевой части применяем два самореза.
- Помещаем квадрат в отверстие. Нанизываем накладки и ручки.
- К стойке фиксируем ответную планку. Её позиция – напротив замка. Крепёж – саморезы. Перед этим выбираем паз для язычка защёлки.
- Обозначаем позицию для петель. Ставим полотно в коробку. Пазы для петель подбираем стамеской. Привинчиваем их саморезами.
- Ставим полотно в проём.
После чего можно монтировать наличники. Только сначала удаляем клинья и излишки пены. Сто стороны петель и замка отступаем на 3 см от края конструкции. При открывании полотно не должно касаться наличников.
Когда плотность стены превосходит глубину коробки, торцы в проёме блокируем доборами. Для фиксации планок используем саморезы. Для заполнения пустот – пену.

О нестандартных моделях
Как самостоятельно вставлять межкомнатные двери, имеющие нестандартные параметры?
Это тоже довольно актуальный вопрос. Ведь часто приходится монтировать двери в арку без коробки или в огромный проём, применять модели неординарных форматов. Это обуславливается теми или иными условиями и задачами.
И необходимо знать специфики монтажа в таких ситуациях. Также важно изучить инструкцию, как своими руками установить межкомнатные двери в подобных случаях.
Разберём каждый случай отдельно. Начнём с модели – купе.
Специфики монтажа дверей купе

Способ установки купе своими руками зависит от его модели:
- Сдвигающаяся. Её полотно – цельное. Движение идёт вдоль перегородки. Конструкция изолируются две различные жилые зоны.
- Раздвигающаяся. Состоит из двух полотен. Позволят разделять участки в пределах одного помещения.
Купе своими руками можно монтировать на паре направляющих одновременно, либо на верхнем или нижнем таком элементе.

Купе отличаются по высоте. Есть версии до потолка и до центра проёма.
Эти двери могут быть из разных материалов: дерево, закаленное стекло, ламинированный ДСП и т.д.
Самая популярная версия – деревянная. Разберём, как установить такую дверь купе своими руками.
Сначала подготавливаем проём.
В работе используем брус с параметрами 5 х 5 см. Его крепим к стене анкерами.
Как установить дверь купе без ошибок? Нужно опираться на эту схему и дальнейший алгоритм.

Стадия 1. Обозначаем позиции направляющих элементов (НЭ). Применяем два метода:
- Измеряется высота двери с помощью рулетки. К полученному числу добавляем 2 см. Они требуются для гарантии свободного движения полотна в нижней части. Затем приплюсовываем ещё ширину НЭ сверху, включая и роликовый механизм. Общее сложение определит позиции для НЭ.
- Приставляем полотно плотно к проёму. Сверху добавляем ширину НЭ. Делаем на стене обозначения. Они и определят позиции крепежей.
Стадия 2. Крепим НЭ на стене под обозначенной линией. Используем дюбели и шурупы. Можно привинтить основание на брус. Это более надёжно.
Ст. 3. Проверяем горизонтальность НЭ с брусом.
Ст. 4. Применяется роликовая каретка и болт. Помещаем в НЭ две роликовых системы.
Стадия 5. На верхней стороне полотна крепим скобы для кареток. При этом отступаем по обеим сторонам по 0,5 мм.
Ст. 6. Приставляем дверь к проёму. Приподнимаем. Привинчиваем к скобам.
Ст. 7. Проверка горизонтальности. При надобности ослабляем или подтягиваем крепежи.
Ст. 8. Монтируем наличники.
Ст.9. Маскируем роликовую систему. Применяется декоративная планка.
Если работа идёт со стеклянной моделью, то возникает вопрос - как поставить подобную дверь в комнату своими руками?
Сначала крепим к проёму снизу и сверху НЭ. Для нижнего элемента в полу создаём канавку. Также для стекла нужны особые крепежи – лапы. Полотно помещается между ними, закрепляется шурупами.
Монтаж модели с двумя створками

Если у вас межкомнатный проём очень большой, а помещение маленькое, требуется установка модели с двумя створками. А как грамотно установить двухстворчатую дверь, отражено далее.
Сначала также подготавливаем проём: убираем старую коробку, элементы пены, шпаклёвки и т.д.
Соблюдаем важные условия – полную готовность стен к финальной отделке и их максимальная ровность.
Рассчитываем проём: (ширина полотна + пустота, отделяющая его и брус + плотность коробки) х 2 + 1-2 мм для компонентов закладки.
Пример: (60 + 3 + 25) х 2 +4 = 126 см.
Высота проёма определяется аналогично. Только учитывается щель между полом и конструкцией. Это примерно 1-2 см.
Для создания порога применяем такую арифметику: 2 плотность коробки + высота двери + пустота между коробом и полотном х 2.
Как установить двухстворчатую модель без подобных расчётов? Приобретайте сразу версию необходимых параметров (если найдёте)
Определяем сторону открывания двери. Вычисляем длину стоек. Учитываем неровности пола. По высоте отпиливаем нижний отрезок стоек.
Ставим шканты в дырки в срезах по бокам коробки.
Предельно стягиваем все компоненты, крепим скобами
Если в конструкции нет петель, вырезаем их.
Собирая коробку, подгоняем брусок под параметры полотна: 2 ширина полотна + 6 мм (потенциальные щели).
Высчитывая высоту коробки, к параметрам целой конструкции добавляем 1 см снизу и 3 мм сверху.
Брусок с верхнего участка и прилегающие окончания стоек режем под углом 45 градусов.
Собираем коробку. Её углы соединяем тремя саморезами. Два из них завинчиваем под углом фронтальной стойки вверх. Один – между ними, но верхней стороне.
Далее монтируем петли. На торцевой зоне полотна отмеряем 20 см, прикладываем петлю. Обводим её контур. Здесь углубляем паз.
Через пластину петли, что лежит в канавке, шилом намечаем позиции крепежей. Сверлим дырки. Они по диаметру проигрывают крепежам на 1,4 мм.
Также создаём канавку для ригеля.

На короб накладываем полотно. На брусьях намечаем позиции петель. Аналогично создаём канавку.
Петли монтируем на все стойки и створки. Затем ставим ригель.
Крепим весь блок к стене саморезами, длина которых лежит в спектре 8-10 см. Сначала монтируем стойки по бокам. Они от стены отделяются деревянными прослойками. Имеющиеся пустоты запениваем.
Полотно весим на нужную позицию. Под скромным углом сверлим дырку для пластинки ригеля.
.
Когда ставите подобные межкомнатные двери своими руками, учитывайте, что для массивных конструкций требуется несколько НЭ. Здесь работает тот же принцип, что с тяжёлыми купе.
Чтобы определить позиции верхнего НЭ, прислоняем к проёму и по его линии сверху горизонтальную черту. Между основанием и полом остаётся зазор 1,2 – 1,4 см. размещаем подходящую прокладку.
Брус, на который ставим НЭ, размещаем горизонтально. Крепим дюбелями.
Особенности установки откатной двери
Такой вид двери – разновидность купе. Как нужно устанавливать откатную дверь? Здесь нужно опираться на принципы монтажа купе.
Крепление НЭ здесь сложно делать в одиночку, лучше работать в тандеме. Обычно рекомендую монтаж вдоль стены.

Как ставить откатную модель – порядок операции:
- Крепим колёсики. Определяем высотные отличия между НЭ сверху и снизу.
- Определяем позицию верхнего НЭ. На основе этого подбираем полотно. Рельсы фиксируем на стене. Правильно ставим кронштейны: на едином уровне. Шаг зависит от массы створки.

Дверь должна прилегать к стене так, чтобы свободно двигаться, и получился минимальный зазор.
Берём полотно и примеряем по позиции. Для крепежа НЭ применяем шурупы и дюбели.
- Крепим нижний НЭ на полу.
- Ставим полотно. Если расчёты верны, монтаж идёт быстро. Опорные колёса размещаются на НЭ. Створка смещается. Монтируем ограничители движения.
- Ставим дополнительные элементы: ручки, замки, декор и т.д.
Установка раздвижных дверей
Как установить раздвижные двери? Работа зависит от выбора системы:
- Купе (монтаж был описан выше)
- Кассетная.
- Каскадная.
Как монтировать купе, было описано ранее. Каскадная система заказывается крайне редко. А для самостоятельной установки она слишком сложна. Поэтому разберём кассетный тип.
Как установить кассетные межкомнатные раздвижные двери? Монтируем НЭ, вешаем полотно по такому же принципу, как с купе. Только здесь отпадает надобность в отделочных операциях.
Декоративную планку не применяем. Вместо неё минимум в 10 см от стены устраиваем фальш-стену. Для этого используем гипсокартонные профили. Их обшиваем подходящим материалом, например фанерой или ГБЛ.
10 см – это плотность полотна и зазоры с двух сторон (5 см) + 5 см на монтаж профиля.
Главную нагрузку примет стены. Поэтому профильный каркас не усиливаем.
Монтаж гармошки

Если вам нужно сэкономит пространство, то необходимо знать, как установить дверь гармошку?
Сначала – измерение проёма. Если он по ширине достигает 1 м., то хватит одного верхнего НЭ.
В шаблонный магазинный комплект входит:
- 1-2 НЭ.
- Петли и кареточные ролики (2, либо 4 шт).
- Панели.
- Дополнительные компоненты.
- Ключ регулировки.

Панели должны целиком закрывать проём.
Как вставить дверь такого типа – этапы работ:
- Сборка пластин. Раскладываем их на полу. Скрепляем болтами.
- Вертикальная установка боковых планок. Их мощная фиксация в проёме.
- Монтаж НЭ. Если они длиннее, чем надо, подрезаем их. Планку готовим так, чтобы на её окончаниях были дырки для болтом. Их позиции – в 2-3 см от края
- Сверлим дырки для гильз под крепежи.

До монтажа проверяем горизонтальность проёма. Верх должен быть строго параллелен низу.
Способы достижения нужной горизонтальности:
- Оставляем коробку. Ровняем дерево.
- Убираем всё с проёма. Кладём волнительный слой состава. При этом развиваем длину крепежа. Он должен достигать материала проема.
Крепим НЭ сначала на один саморез. Привинчиваем его неплотно.
Навешиваем дверь на НЭ (бегунки размещаем в пазе). Конструкцию крепим к верху проёма по готовому обозначению.
Монтируем заднюю полупанель с присоединённой планкой (по вертикали).
Полупанель спереди – замковая. На неё ставим магнитную защёлку.
На финише ставим дверную ручку.
Как поставить дверь в широкий проем или в арку
Устанавливать дверь в широкий проем можно, применяя указанные системы: купе, раздвижные, распашные модели, гармошки. Принципы их монтажа уже изложены.
Чтобы поместить дверь в широкий проем, можно несколько его уменьшить с помощью штукатурки.
Часто в таких случаях применяем наличники и доборы.
Можно установить массивную сложную конструкцию, можно - легкую модель. Всё зависит от задач и условий заказчика.
Более изящной задачей является работа в условиях арочного проёма. Вставляем двери в арку по описанному ранее методу. Только приобретаем специальную арочную коробку.

Только работа с петлями и боковыми компонентами, и замками более сложная,
Удаляем арку с этого проёма. Поверяем его геометрию. Устраняем отваливающуюся штукатурку. Грунтуем проём. Наносим новую штукатурку.
По уровню ставим коробку. Помещаем клинья.
Делаем дополнительный крепёж – подвесы. В стене под них устраиваем углубление. Покрываем шпаклёвкой.

От коробки завинчиваем подвесы с помощью саморезов в её торцевую часть.
Когда делаем подготовку, полотно сохраняем на его позиции.
Закрываем дверь. Отделяем короб и полотно картоном плотностью 2-3 мм.
Немного увлажняем поверхность. Заполняем пустоты пеной. Когда она становится твёрдой, убираем ей излишки.
Вокруг двери шпаклюем стены, ставим наличники и декоративные компоненты.
В арочный проём часто устанавливаем легкую межкомнатную дверь. Как правило, это пластиковая гармошка, или её версия из МДФ.

Установка двери в старую коробку
Сегодня часто спрашивают, можно ли приспособить старый короб для монтажа нового полотна? Здесь нет однозначного ответа. Многое зависит от состояния самой коробки, её цвета, прочности и т.д.
Установить дверь в старую коробку логично, когда:
- не хочется проводить колоссальные работы,
- есть желание хорошо сэкономить,
- нет желания рушить имеющуюся конструкцию.
Тогда разумно просто реставрировать имеющуюся коробку.
Практика показывает, что сэкономить на данных процессах не получится.
Полотно потребуется заказывать специально, по параметрам. Со старого короба устраняется вся краска. Слоёв там много. Работа трудоёмкая. Часто применяем современные средства, снимающие краски, а также шлифовальные аппараты.
Затем устраняем трещины и прочие дефекты на коробке. Грунтуем её. Окрашиваем ей и новое полотно в один цвет. Также обновляем и наличники. Им задаём тот же цвет.
Звоните! 8 (499) 390-95-97
Ещё пять нюансов
Далее рассмотрено ещё пять нюансов монтажа комнатной двери.
- Перегородка – гипсокартонная.
- Нет коробки.
- У двери нет порога.
- Монтаж изнутри.
- Монтаж с добором.
Как установить дверь в гипсокартонной перегородке? Выполняем следующие пункты:
- К полу и потолку крепим металлические профили толщиной 0,4 – 0,6 мм. К ним – две стойки в вертикальном положении. Это боковые рубежи проёма.
- При потолках более 3 м, стойки усиливаем брусками, которые помещаем в профили.
- Дистанция между стойками идентична ширине коробки. Ещё добавляем 2-3 см по обеим боковым сторонам.
- Ставим прочие стойки. Максимальный шаг – 60 см.
- Создаём форму «П». Ставим перемычку между стойками. Высота установки идентична высоте коробке. Ещё сохраняем резерв 2-3 см.
- Укрепляем перемычку – ставим ещё одни стойки. Перемычку скрепляем с потолком.
- Ставим перемычки по горизонтали между другими стойками.
- Монтируем гипсокартонные листы. Шпаклюем их, грунтуем, окрашиваем.
- Помещаем коробку в проём. Фиксируем клиньями. Позиционируем по уровню. Присоединяем её к профилям с помощью саморезов. Для этого предварительно готовим отверстия.
- Дополнительная проверка вертикальности.
- Расклинивание коробки перемычками.
- Заполнение зазоров пеной.
- Устранение её излишков (через сутки).
- Вставка петель –идут штыри в дырки ответных петель. Эти элементы смазываем маслом.
- Прибиваем наличники к коробке. Используем гвозди со спрессованной шляпки. Соединение планок – встык, под углом 45 градусов. Планки прибиваем по периметру всей двери. Шаг – 20-25 см.
.
Можно ли устанавливать двери без коробки? В теории – да. Тогда обязательно подгоняем дверь. Её рано или поздно всё равно поведёт. Поэтому лучше ставить комплект.
Как установить межкомнатную дверь без порога? Здесь идут уже знакомые процессы. Важнейшее условие – стены и пол должны быть идеально ровными.
Дверь без порога ставим по двум методам:
- В проём монтируем готовую раму, закрепляем полотно. Ставим коробку. Фиксируем клиньями. Ставим по уровню. В раме делаем дырки для крепления короба к основе. Используем саморезы, каждый утапливаем. Задействуем заглушки.
Монтируем полотно. Зазоры запениваем.
- Фиксируем блок. Поднимаем целую конструкцию по вертикали. Помещаем в проём. Выравниваем. По периметру ставим колышки. Зазоры у их позиции заполняем пеной. Через сутки пену подрезаем. Крепим планку для защемления на лудке.
Делаем дырки для язычка замковой защёлки. Обозначаем позиции входа замка. Вырезаем отверстие.
На финише ставим наличники.
Как самому устанавливать межкомнатную дверь с добором? Здесь следуют те же операции, что и при установке обычной коробки.
Только доборы нужны, когда она по ширине уступает стене.
Вычисляем ширину короба до крайней точки стены. Добор подбираем в тон самого полотна и наличников.

Поворачиваем добор обратной стороной. Устраиваем четверть. Так добор поместится в коробке. Запиленную часть спрячем.

Готовые элементы помещаем на места. Ставим их по уровню. Используем пену для их задувания.
При наличии обоев подрезаем наличники, делаем их подгонку и монтаж на место.
Если обои не поклеены, монтируем наличники на сухую. Делаем их финальное крепление после проклейки обоев.
Как устанавливать дверь изнутри? Такой монтаж оправдан, когда нужно, чтобы дверь открывалась вовнутрь комнаты.
Если ставится обычная дверь, устраивайте петли так, чтобы она открывалась вовнутрь. Порядок монтажа уже описан.
Можно поставить качающуюся модель дверей
Уход за межкомнатными дверями, что бы служили долго
Здесь нет больших секретов. Какую бы модель вы не монтировали, соблюдайте банальные правила:
- Регулярное смазывание петель.
- Проверка замочных механизмов.
- Мытьё и очищение препаратами, подходящими для конкретного материала.
- Бережное отношение. Никаких агрессивных воздействий.
Звоните! 8 (499) 390-95-97



Услуги по ремонту
Заказчикам
Компания

Контакты